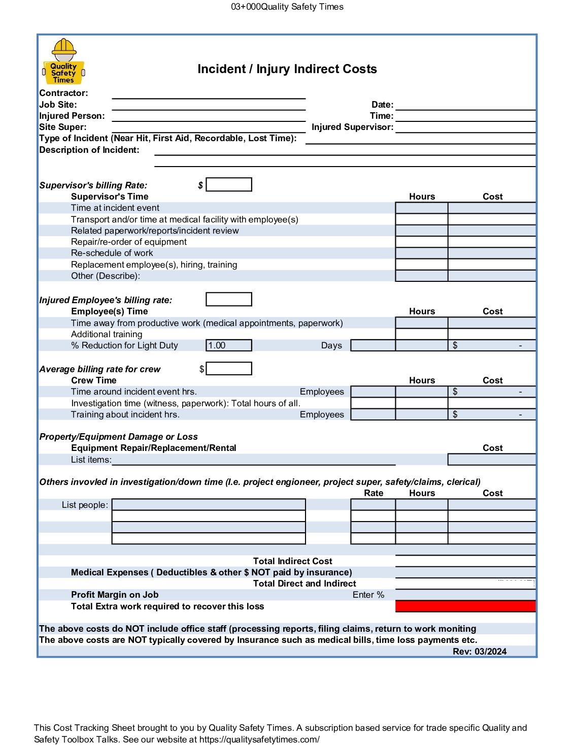
Worksheets for tracking Costs of Employee Injuries
- Don’t Believe the Research? Unsure what your costs are for craft accidents?
- Track the costs of your incidents using the above; then identify the extra work required that affects your profit margins
- A great project for a summer intern, a newer PE, PM or Superintendent.
- A great training tool to show crafts the costs of ReWork/mistakes

